Vermietung von Ordinationsräumlichkeiten
Vermietung von Ordinationsräumlichkeiten im Ärztezentrum Fohnsdorf
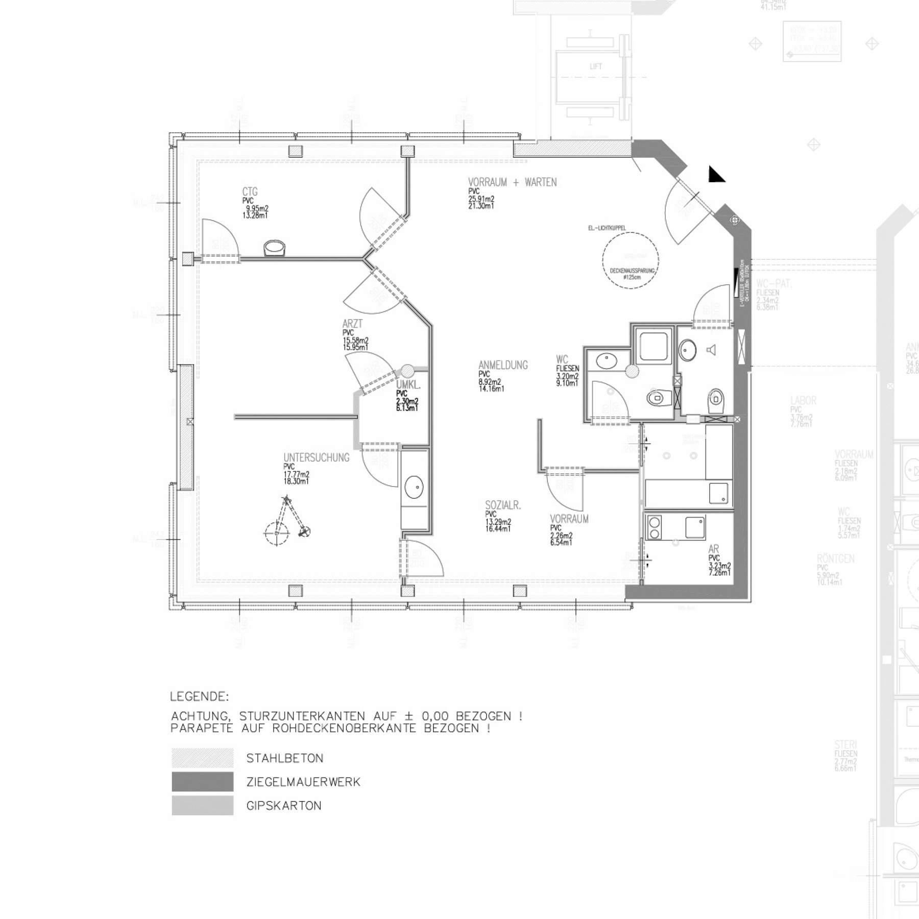
Ab sofort sind im Ärztezentrum Fohnsdorf die ehemaligen Ordinationsräumlichkeiten von Dr. Raunig verfügbar. Die Fläche beträgt 108,50 m² und eignet sich ideal für eine medizinische Nutzung.
Kontakt für nähere Informationen und Besichtigungen:
E-Mail: liegenschaft@fohnsdorf.gv.at
Telefon: 03573 / 2431 – 124
Grundriss anbei zur Durchsicht
Weitere Bilder
Gemeinde Fohnsdorf
A-8753 Fohnsdorf
Hauptplatz 3
Tel.: +43 3573 2431
Fax: +43 3573 2431 - 107
E-Mail: gde@fohnsdorf.gv.at
Parteienverkehr
Montag 7 - 17 Uhr
Dienstag 7.30 - 13 Uhr
Mittwoch 7.30 - 13 Uhr
Donnerstag 7.30 - 13 Uhr
Freitag 7.30 - 13 Uhr
Immer am aktuellsten Informationsstand!
Unser Infoservice liefert Ihnen, in periodischen Abständen, Informationen rund um die Gemeinde Fohnsdorf.
zum Newsletter Eintrag...






